在城市化的浪潮中,是跻身北上广的拥挤、繁忙、快速,还是回归家乡小镇的安稳、闲适?

对于本期屋主耶萌来说,“此心安处是吾乡”。与爱人一起在上海奋斗的耶萌,夫妻俩却选择了在家乡福建南平买房。这样的双城生活,如今也成为了当代许多年轻人的一种选择。

不同于大城市寸土寸金的紧迫感,家居每一寸空间都要用到极致。耶萌在南平的家,果断砸了几堵墙,换来现在的大横厅和大平层的宽敞和通透感。

▲原始平面图

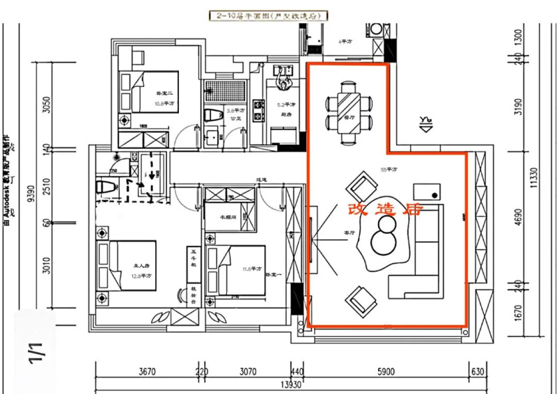
▲改造后平面图
改造亮点:
①原户型坐北朝南,4房2厅,屋主选择牺牲一间客房,把空间让渡给客厅。
②打通6米长的阳台做了一整面大落地窗,大平层的设计加上全屋通铺750*1500大规格的境界石系列-卡塔尔,在视觉上,客厅瞬间变大了好几倍。
③客餐厅一体化,拓宽了场景空间的尺度,更加开放互通。定制顶天立地的收纳柜,兼顾颜值的同时,更保证了家居收纳空间。
客 厅 / Home
极简大平层,惊艳众人的全景视野
大平层自带矜贵的奢侈感。宽敞的客厅配上超大全景落地窗,为空间引入充裕的自然光,内外和谐共生。客餐厅、阳台、厨房、走廊都通铺了冠珠瓷砖1500×750mm境界石-卡塔尔,通铺一体化的设计,保持了整个空间色调的统一。

挑选瓷砖时,耶萌一眼就相中冠珠境界石-卡塔尔,灰白色流动的大理石纹理拼接在一起,有着无限连纹的效果。铺贴之后开阔大气,让整个空间看上去瞬间大了好几倍。优雅低调的灰色把持全局,营造出轻奢、高级、时尚的家居氛围。用少许黑、白、棕色软装做点缀,过渡自然,空间层次感更加鲜明。

晒个舒服的日光浴,看看电影听听音乐,这样的生活状态对耶萌来说非常惬意。重要的是,全屋通铺冠珠瓷砖1500×750mm卡塔尔的一体化设计让居室空间更为宽敞、明亮,有助于培养孩子开朗、独立的性格。

应用产品:GF-RQ1575009境界石系列-卡塔尔
产品规格:1500×750mm
餐 厅 / Home
营造生活里的仪式感
干净简洁的环境能够让人放松。境界石系列以意大利设计为创意来源,1500×750mm黄金规格,一石多面,真实还原天然石材自然的纹理和质感。采用直线铺贴,极具延伸感,轻松塑造开阔空间。

极简干净的线条勾勒出质感的空间,灰色的色块提升了整体空间的高级气质。清透的瓷砖纹路释放出无限张力,用设计诠释空间美学。

应用产品:GF-RQ1575009境界石系列-卡塔尔
产品规格:1500×750mm
厨 房 / Home
理想中的三餐四季
厨房是一个家的核心,要颜值也要有气质。屋主想要打造一个温暖的厨房,颜色搭配上,以大地色系为主,中灰色调的柔光墙砖搭配米色的橱柜,质朴归真,给视觉带来舒适的感受,更赋予了空间一种恬静的优雅气质。
厨房使用频率较高, 耶萌选用了冠珠1200×600mm柔光砖上墙,质感细腻,光度舒适自然,同时兼备耐磨、抗污的卓越性能。

应用产品:GF-Y126037新郁金香-中灰
产品规格:1200×600mm
卧 室 / Home
低饱和度传递细腻质感
卧室以低饱和的色调为基调,细腻中不失质感。主卧带浴室的装修,让日常生活更加方便,也更符合都市年轻人的生活理念。

主 卫 / Home
有序的品质空间
酒店风不意味着冰冷乏味,恰恰相反,耶萌喜欢其中人性化的设计和整洁有序的感觉。主卫用透明隔断做了半开放布局,空间通透,还做到干湿分离,保证卫生间的实用性和有序性。

卫浴同样以灰色作主调,选了冠珠的阿玛尼浅灰上墙铺贴。灰色大理石细腻的纹理,配上恰到好处的光源设计,通过有序美感增加了轻奢感的氛围,打造品质空间。
卫生间会接触很多水渍,瓷砖上墙的设计能够让打扫更省心,冠珠瓷砖拥有低吸水率,耐脏且不容易发霉、开裂。浅灰作为阿玛尼系列的经典配色,整体应用干练明快,简约中不失温暖。


应用产品:GF-1Q126317阿玛尼浅灰
产品规格:1200×600mm
次 卫 / Home
空间虽小 个性鲜明
在客厅过道设计了次卫,尽管这个空间只有3.8平方,但精致优雅同样不能少。黑色花洒、灰色墙面,全屋都保持着现代轻奢风格的统一。耶萌选择了冠珠的喜马拉雅灰,纹理如流水般倾泻而下,连纹设计恣意潇洒,打破了大砖不适合小空间的公式,利用视觉差无形中扩大了卫生间的空间。


应用产品:GF-MB80357喜马拉雅灰
产品规格:800×800mm
走 廊 / Home
简单即高级的设计艺术
颜色、光线相互协作,最大程度凸显材质的美感。用好线条灯,以光为笔,趋于同步的光影,均匀分布在砖面上,勾勒出晶莹透亮、浓淡相宜的质感空间。


应用产品:GF-RQ1575009境界石系列-卡塔尔
产品规格:1500×750mm

本期案例以现代轻奢风的设计,让设计提升生活品质,打造高级舒适的家。下一期更多中国人的家,等你来发现。





















