教科书级别爆改小户型,小资独立吧台不浪费每1㎡

发布日期:2022-08-02 浏览量:

这座城市是留给有梦想、有能力、有准备的人的,只要你肯奋斗,它就能给你想要的东西。屋主蔡女士因梦想毕业后毅然选择到深圳打拼,目前在房地产公司做品牌管理。

瓷砖品牌.jpg

 

客厅瓷砖.jpg

 

夫妻俩用8年时间,在深圳买下自己的房子,77㎡面积虽小,却满是安全感。他们用心改造小屋,精妙布局,用尽每1㎡,通过暖灰色调的灵动石纹冠珠瓷砖,赋予空间简约治愈之美,实现五口人在77㎡的三居室舒适共处,精致生活。

 

改造亮点

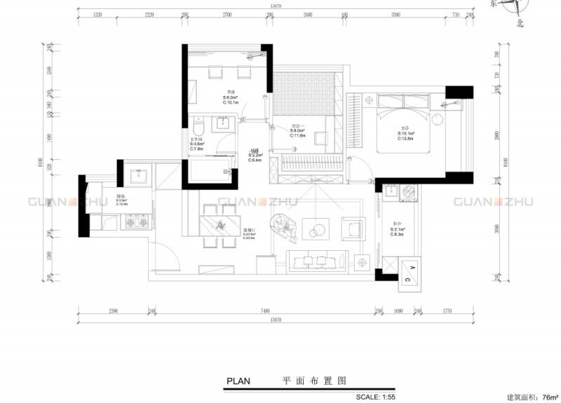
1、阳台改建:改成独立房间,两室变为三室,方便父母照顾孩子;

2、空间重构:电视背景墙后移30公分,做定制电视柜,扩大客厅面积;

3、墙面膨胀色”+地面万能灰,打造清爽开阔空间。

瓷砖.jpg

改造后户型图

 

 嵌入式设计,扩容有术

从事房地产行业的蔡女士看过很多房子,却钟爱简约显气质的现代简约风。客厅以白色与灰色为主调,搭配法式穹顶显层高。客厅背景墙后移30公分,做电视柜扩容空间。冰箱嵌入电视背景墙侧面,扩容的同时满足视觉和谐统一。

 

客厅瓷砖效果图.jpg

柜体、墙面利用浅色系扩张视觉效果,地面通铺冠珠意大利银莎,暖灰色调明亮纯净,小户型空间瞬间变得清爽开阔。

瓷砖图片.jpg

地面应用产品GF-MB80350意大利银莎

产品规格800×800mm

应用区域客厅、餐厅、厨房

 

独立吧台设计,满足多场景应用

只需1㎡,小户型也可以拥有独立L型吧台的快乐。点一支蜡烛倒一杯红酒,吧台可以是夫妻俩享受浪漫二人世界的小空间;站在储物区,转身便能动手做辅食,吧台也可以是给宝宝做辅食的便捷操作区域,不会妨碍家人同时在厨房操作。

墙面瓷砖.jpg

地面瓷砖.jpg

 

独立吧台设计,搭配可移动桌椅,增加空间的自由度,以简约金属吊灯做点缀,暖色灯光为用餐区域增添浪漫温馨气息。地面通铺耐磨防滑的冠珠意大利银莎瓷砖,家人可以安心、随便地移动桌椅,不怕瓷砖被刮花,以及家人滑倒。

瓷砖规格.jpg

地面应用产品GF-MB80350意大利银莎

产品规格800×800mm

应用区域客厅、餐厅、厨房

 

 “U”型布局,动线流畅舒适

厨房是重油烟区,墙面铺贴卡拉拉白瓷砖,搭配白色橱柜,打造干净清爽的空间,也便于日常清洁。

厨房瓷砖.jpg

010.jpg

 

客餐厅的冠珠意大利银莎瓷砖直接通铺至厨房地面,既能保证空间连贯性,瓷砖良好的性能也能抵抗油污、积水的渗透。

佛山瓷砖.jpg

墙面应用产品:GQI62239 卡拉拉白

产品规:600×300mm

应用区域:厨房

瓷砖代理.jpg

同款升级产品推荐 GF-3Q126051银河白

产品规格:1200×600mm

应用区域:厨房

 

 灰色瓷砖+小花砖,个性温馨

经常出差的夫妻俩,不喜欢酒店风的卫生间,冷冰冰。墙地面选用布朗灰盛世华彩两款灰色系冠珠瓷砖搭配,通透明亮,用小花砖进行部分点缀,彰显独特个性,营造轻复古温馨感。

卫生间瓷砖图片.jpg

卫生间干湿分离设计,提高功能区使用效率,适合蔡女士这样的双职工家庭,搭配储物镜柜满足日常收纳需求。

卫生间墙面瓷砖.jpg

 

瓷砖加盟.jpg

墙面应用产品:GQI62227布朗灰

产品规格:600×300mm

应用区域:卫生间

 

阳台改成卧室,舒适实用

阳台改造为卧室,方便父母照看孩子。利用飘窗拼接蔡女士亲手设计的储物床,节省空间的同时满足收纳需求,深木+奶白双色拼接,让整个空间错落有致。

瓷砖什么牌好.jpg



开放式阳台,休闲放松

开放式阳台保证充足的采光与良好通风效果,打造成休闲放松之地。地面采用冠珠江南香樟木纹砖,防晒又防潮,日常轻易打理,搭配几株绿植装点,呈现出自然风味,为空间美学构建更多可能性。

 

一线品牌瓷砖.jpg

佛山瓷砖图片.jpg

地面应用产品:GF-WA915748江南香樟

产品规格:900×150mm

应用区域:阳台

屋主蔡女士将70㎡小户型,装出100㎡的空间既视感,享受舒适精致的生活。在有限的城市空间里,家对屋主夫妻俩来说,不止是一处房子,还承载着他们对美好生活的想象。

 

2022年冠珠瓷砖美居计划,打造100个美好人居用设计,诠释人间的烟火用饰材,实现人居的理想欢迎一块传递美好的人居故事