以极强的包容性突破风格限制,轻复古法式奶油风,让三代同堂的家庭每个成员在快节奏生活中,依旧舒适宁静、各得其乐。
凌英麒
一宅一物建筑空间设计创始人兼设计总监
【香港】APIDA亚太区室内设计大奖 金奖
【台湾】TID Award室内设计大奖
【德国】IF Design Awards 设计大奖
【意大利】A`Design Awards设计大奖
设计理念:要「好看」,更要「好用」
建筑设计师,曾就职于香港华艺建筑设计有限公司。拥有14年建筑设计经验:用建筑的艺术语言和表现手法,将建筑、室内与环境相融合,以空间为核心的功能美学设计,构筑舒适与品位并存的空间。“一栋房子,每一处设计,人也好,光也好,水也好,不但要「好看」,更要「好用」。”这是一宅一物建筑设计室的创始人凌英麒的“信条”。
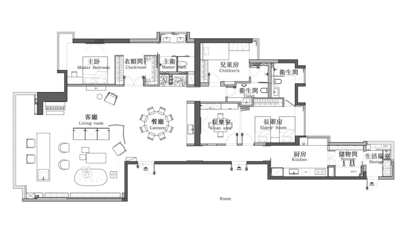
户型图 | 关于设计合理化的思考
利用功能齐全的开放式区域设计,满足每位家庭成员需求,为家人打造出舒适温馨、其乐融融的法式奶油风新家,让长辈、父母、孩子一起生活的时光更自在轻松,在锁碎日常中,感受平凡日子里的小确幸。
客厅 · 一体化通铺 造大雅之堂
冠珠韶华岩板「象牙金带」兼具东方元素与极强的设计包容性,既保留了“奶油风”的氛围感,又突破了其设计界限。
——设计师说 | 凌英麒

全屋地面通铺冠珠韶华岩板「象牙金带」,既奠定了年轻人钟情的法式优雅基调,又能满足长辈热衷于「尊贵感」所带来的美好寓意:荣华满屋。墙面的奶油感艺术漆,融入了东方美学意境的装饰墙面与茶几纹理,将法式奶油风慵懒浪漫的氛围感搬进家,在「象牙金带」的搭配下往大气、质感、低调奢华的方向延伸打造。长辈的偏好与年轻一代的审美,在此刻美好相融。全开放的客厅布局和落地玻璃窗,最大化丰富采光与视野,增强纵深感,也让公共区域在视觉上更有延伸感。
地面:GF-DV121212-470 象牙金带
餐厅 · 浪漫氛围,延伸视觉
冠珠韶华岩板 象牙金带浅色系一体化通铺,很好地延伸空间的视觉感与纹理的灵动感,于细节处增加高级感。
——设计师说 | 凌英麒
多功能一体化的客餐厅,地面同样采用的是冠珠韶华「象牙金带」,与客厅形成一体连贯的效果将法式浪漫的氛围感延续到底,并让整体视觉得到了延伸,更具流动的韵律感。一屋五人,三餐四季,不管是解决繁忙早晨的简单用餐,还是享用和乐融融的家庭晚餐,都能感受到蓬勃的生机与温暖。

地面:GF-DV121212-470 象牙金带
厨房 · 经典配色 复古田园风
原木色+黑色+米色,法式的轻盈和中式的厚重兼具。
——设计师说 | 凌英麒
遵循“上浅下深”的色彩原则,地面沿用「象牙金带」奠定质感底色,又以极高的包容度搭配素白+原木橱柜,让空间保持视觉开阔的轻盈感,不繁琐、不累赘,伴随现代优雅品味,打造出中世纪法式乡村慵懒风,让炊金爨玉的每一个瞬间犹如胶片电影里般美好。

地面:GF-DV121212-470 象牙金带
卧室 · 去繁就简 松弛至上
阳光挥洒之下,冠珠韶华岩板日上东方的窗台映照着“万象更新”的意境,让设计应用增加了向上的精神内涵。
——设计师说 | 凌英麒

对比公共区域的质感装点,卧室更加凸显亲近与舒适。不超三色搭配,去除复杂装饰,保持视觉上的柔和与清爽。地面通铺冠珠悦木系列的月柳,鱼骨拼纹路雅致大气,整个睡眠空间充满舒适、安心的治愈感,彻底享受放松身心的好眠时光。
卧室地面:GF-WI1U126025 月柳
卧室窗台:GF-GY121212-461 日上东方
光线充足、明亮开阔的卧室,充满了法式奶油风自带的优雅情调。适当用原木、棉麻以及绿植等元素,增加卧室的清新自然与慵懒感,细致关怀长辈的睡眠,同时呵护孩子的健康成长。有爱的生活,才是一个家最美好的样子,给家人打造有温度、简约温馨的生活空间。把家装成自己和家人都喜欢的模样,就是给父母、孩子珍贵的礼物。
全屋地面通铺:冠珠韶华岩板:GF-DV121212-470 象牙金带
卧室窗台/地面:冠珠韶华岩板GF-GY121212-461 日上东方
冠珠悦木系列GF-WI1U126025 月柳





















